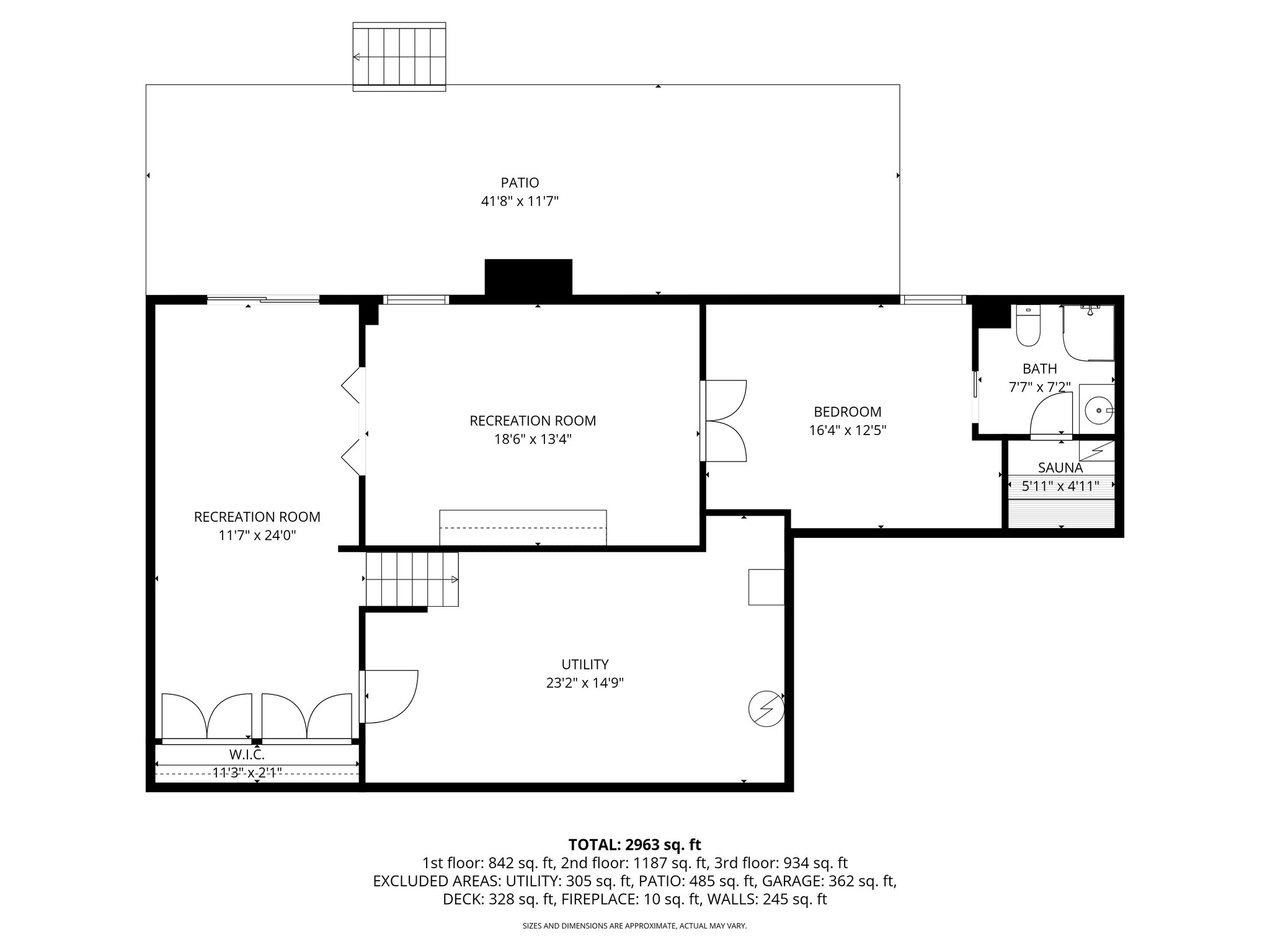
Lower Level
Main Level
Upper Level
Floor Plans
Lower Level
Main Level
Upper Level
Floor Plans